堀川丸太町シティハウス / 不動産情報|京都市の不動産情報なら京阪本線黒染駅すぐのサウスエステートへ

一戸建て、マンション、土地等不動産の買いたい、売りたいをお客様のご要望・ご事情にあわせてご提案してまいります。不動産のことならお気軽にご相談ください

登録・更新日:2020/11/08

堀川丸太町シティハウス 

※ 堀川丸太町シティハウス は現在募集しておりません。

同一区画の他の物件情報の募集がある場合は、画面下部に募集物件一覧のリストが掲載されております。是非ご覧ください。
最新状況や条件に近い他の物件の紹介希望等ございましたらお気軽にお問いあわせください。

株式会社サウスエステート 

お電話でのお問い合わせ
075-645-0128
営業時間
10:00~18:00

外観図

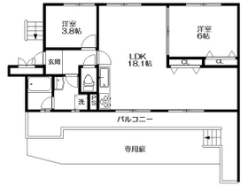
間取り図面

  •  外観図

物件詳細情報

基本

アクセス 京都市東西線 二条城前駅  から 徒歩12分 種別 マンション
所在地 京都府京都市上京区木屋之町 学校区 二条城北小学校 二条中学校

建物

構造 鉄筋コンクリート造 完成年月 1981年08月 ( 築44年 )
専有面積 57.88m 2  ( 17.5坪 ) バルコニー面積 13.43m 2  ( 4.06坪  ) 南向き
間取り 1SLDK  南向き 所在階 1階
リフォーム - リノベーション -
階建 3階建 総戸数 12戸
管理人 巡回管理 管理形態 全面委託
管理組合有無 管理会社名 ジャパンリアルティスーパービジョン(株)
施工会社名 (株)銭高組 建築確認番号 -
設備・条件 上水道/都市ガス/即入居可/南向き/日当たり良好/閑静な住宅街

堀川丸太町シティハウスへの お問い合わせは株式会社サウスエステート  まで

株式会社サウスエステート 
612-0051京都府京都市伏見区墨染町708ハイツ横山1F

会社案内

お電話・FAXでのお問い合せ
TEL:075-645-0128 FAX:075-645-0129
受付時間
10:00~18:00

こちらの物件もあります。

  • 京都府京都市伏見区竹田三ツ杭町

    1580万円

    2LDK / 52.96m²

    竹田駅から徒歩 4分

    候補

  • 京都府京都市伏見区深草出羽屋敷町

    2180万円

    3LDK / 70.86m²

    伏見駅から徒歩 4分

    候補

  • 京都府京都市伏見区新中町

    3090万円

    3LDK / 64.9m²

    中書島駅から徒歩 5分

    候補

  • 京都府京都市伏見区東柳町

    2290万円

    2LDK / 57.78m²

    中書島駅から徒歩 5分

    候補

  • 京都府京都市伏見区景勝町

    4180万円

    3LDK / 71.93m²

    伏見駅から徒歩 9分

    候補

  • 京都府京都市伏見区桃山町松平筑前

    3480万円

    2LDK / 65.89m²

    桃山御陵前駅から徒歩 5分

    候補

  • 京都府京都市伏見区深草池ノ内町

    4080万円

    3LDK / 67.83m²

    竹田駅から徒歩 9分

    候補

  • 京都府京都市伏見区深草出羽屋敷町

    2180万円

    3LDK / 70.86m²

    伏見駅から徒歩 4分

    候補

  • 京都府京都市伏見区上油掛町

    3300万円

    2LDK / 66.13m²

    伏見桃山駅から徒歩 6分

    候補

  • 京都府京都市伏見区舞台町

    2690万円

    3LDK / 64.9m²

    伏見駅から徒歩 13分

    候補

  • 京都府京都市伏見区深草池ノ内町

    3450万円

    2LDK / 64.33m²

    藤森駅から徒歩 9分

    候補

  • 京都府京都市伏見区東組町

    3490万円

    3LDK / 61.06m²

    伏見桃山駅から徒歩 7分

    候補

  • 京都府京都市伏見区桃山町泰長老

    4280万円

    3LDK / 74.64m²

    桃山駅から徒歩 5分

    候補

  • 京都府京都市伏見区西大手町

    3480万円

    3LDK / 67.5m²

    伏見桃山駅から徒歩 8分

    候補

  • 京都府京都市伏見区竹田七瀬川町

    1098万円

    3DK / 48.45m²

    竹田駅から徒歩 7分

    候補